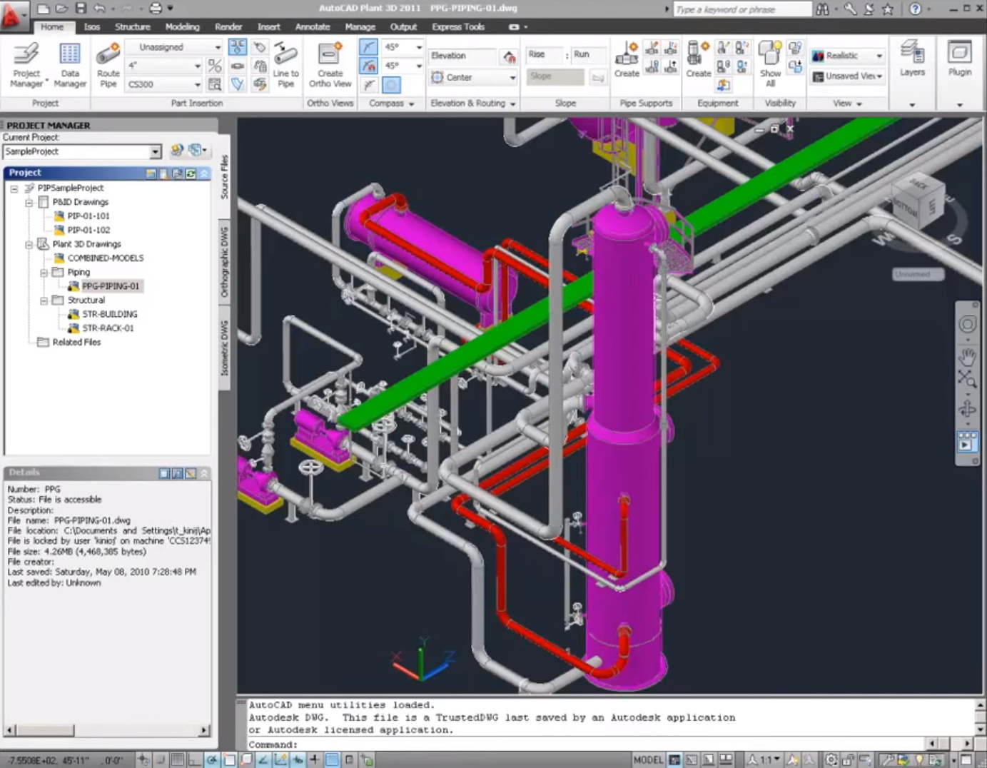
AutoCAD Plant 3D

AutoCAD Plant 3D เป็นโปรแกรมที่ใช้ในการออกแบบก่อสร้างเกี่ยวกับงานโรงงานอุตสาหกรรมต่างๆทำ Project system สามารถเขียนแบบ Piping 3D เข้าใจความสัมพันธ์และการจัดการออกแบบ Project การออกแบบระบบท่อต่างๆ เพื่อให้เห็นภาพของการทำงานมากขึ้นจาก 2 มิติ เป็น 3 มิติ

นอกจาก AutoCAD Plant3D แล้ว ยังมีโปรแกรม AutoCAD P&ID ซึ่งโปรแกรมตัวนี้ถูกออกแบบมาเพื่อทำงานเกี่ยวกับงานท่อและยังมีเครื่องมือต่างๆที่เกี่ยวกับงานออกแบบโรงงานอุตสาหกรรมเช่นกัน โปรแกรม AutoCAD Plant 3D กับ AutoCAD P&ID มีอุปกรณ์เครื่องมือคำสั่งต่างๆที่ยังต้องใช้งานร่วมกันและมีสัญลักษณ์ต่างๆ ที่เป็นมาตรฐานเดียวกันเช่น PIP ISO ,ISA DIN และ JIS-IOS และสามารถสร้างโมเดล 3 มิติ เก็บไว้เป็น Library เพื่อสะดวกเวลาจะเลือกนำมาใช้งาน โมเดล3 มิติ การใช้งานของ AutoCAD P&ID ยังสามารถใช้สร้าง Orthographic ระดับความสูง และจำลองมุมมองต่างๆที่ต้องการเพื่อให้เห็นภาพได้ชัดเจนขึ้นและแก้ไขปัญหาต่างๆได้ง่ายขึ้น

AutoCAD Plant3D จะทำงานอยู่บน Platform ของ AutoCAD อย่างไรก็ตามผู้ใช้งานก็ยังคงจำเป็นที่จะต้องใช้งานแบบ 2 มิติ และ 3 มิติ ไปพร้อมๆกันโดยยังใช้ฐานข้อมูลเดียวกันแต่คุณสมบัติของโปรแกรม AutoCAD Plant 3D อาจจะต่างกันเล็กน้อยเช่นเครื่องมือเฉพาะด้านเพิ่มเข้ามาเพื่อทำการปรับเปลี่ยนของคำสั่งบางอย่างให้เป็นแบบอัตโนมัติทำให้ง่ายต่อการใช้งานมากขึ้น

แต่โปรแกรม AutoCAD ยังจำเป็นต่อการใช้เป็นข้อมูลพื้นฐานในการทำงานรายการประกอบแบบข้อมูลสัญลักษณ์ หรือรายละเอียดต่างๆในรูปแบบ 2 มิติเช่นเดิม

ซินเนอร์จี้ซอฟต์ ตัวแทนจำหน่ายซอฟต์แวร์อย่างเป็นทางการและถูกต้องในประเทศไทยของออโตเดสก์ สำหรับท่านที่ต้องการทราบข้อมูลเพิ่มเติมเกี่ยวกับผลิตภัณฑ์ สามารถสอบถามได้ทางเจ้าหน้าที่ซินเนอร์จี้ซอฟต์ที่
SYNERGYSOFT CUSTOMER REFERENCE
Synergysoft ได้รับความไว้วางใจจากลูกค้าหลากหลายอุตสาหกรรม ที่เลือกใช้ผลิตภัณฑ์และบริการของเราเพื่อเพิ่มประสิทธิภาพในการทำงาน เรามุ่งมั่นในการพัฒนาโซลูชันที่ตอบโจทย์ความต้องการของธุรกิจ และพร้อมสนับสนุนลูกค้าด้วยเทคโนโลยีที่ทันสมัย


บริษัท ซินเนอร์จี้ซอฟต์ โซลูชั่น จำกัด
135/58 อาคารอมรพันธ์ 205 ทาวเวอร์ 2 ชั้น 19 ซอยรัชดาภิเษก 7 ถนนรัชดาภิเษก แขวงดินแดง เขตดินแดง กทม. 10400
ติดต่อสอบถาม
รับข้อมูลข่าวสารจากเรา
AUTODESK SOFTWARE
RELATED LINK
Construction & Design Solution by Synergysoft
แหล่งรวบรวมความรู้ เทคโนโลยี และโซลูชั่นการออกแบบงานอาคารด้วยระบบ BIM งานสถาปัตยกรรม งานโครงสร้างเหล็กและคอนกรีต งานระบบ การก่อสร้าง และคลาวด์โซลูชั่น
Manufacturing Solution by Synergysoft
แหล่งรวบรวมความรู้ เทคโนโลยี และโซลูชั่นการออกแบบและพัฒนาผลิตภัณฑ์ 3 มิติ สำหรับมืออาชีพ งานวิศวกรรม งานเครื่องจักรกล งานเอกสาร และการจำลองผลิตภัณฑ์
Synergysoft Education Center fanpage
อัพเดตข่าวสารการอบรม ตารางการอบรมต่างๆ ผ่าน ซินเนอร์จี้ซอฟต์ เอ็ดดูเคชั่น เซนเตอร์ แฟนเพจ
Construction & Design Solution by Synergysoft
แหล่งรวบรวมความรู้ เทคโนโลยี และโซลูชั่นการออกแบบงานอาคารด้วยระบบ BIM งานสถาปัตยกรรม งานโครงสร้างเหล็กและคอนกรีต งานระบบ การก่อสร้าง และคลาวด์โซลูชั่น
Synergysoft Education Center
Autodesk Authorized Training Center
ศูนย์อบรมการใช้โปรแกรมออกแบบและทดสอบอย่างเป็นทางการจากออโตเดสก์
Synergysoft Online Store
ร้านซอฟต์แวร์ออนไลน์ ชำระด้วยบัตรเครดิตได้
Luvicha
เว็บออนไลน์เทรนนิ่ง เรียนรู้ได้ 24 ชั่วโมง ได้ทุกที่ ทุกเวลา